
Verkauft
Bezugsfertigkeit ab Feb. 2023 nach Absprache möglich.
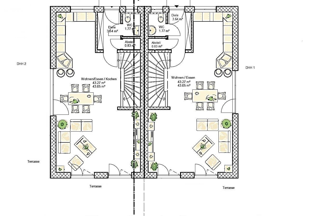
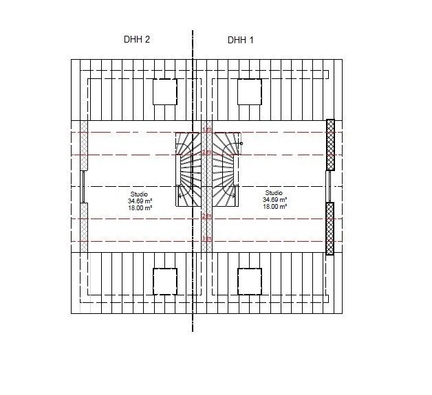
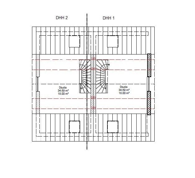
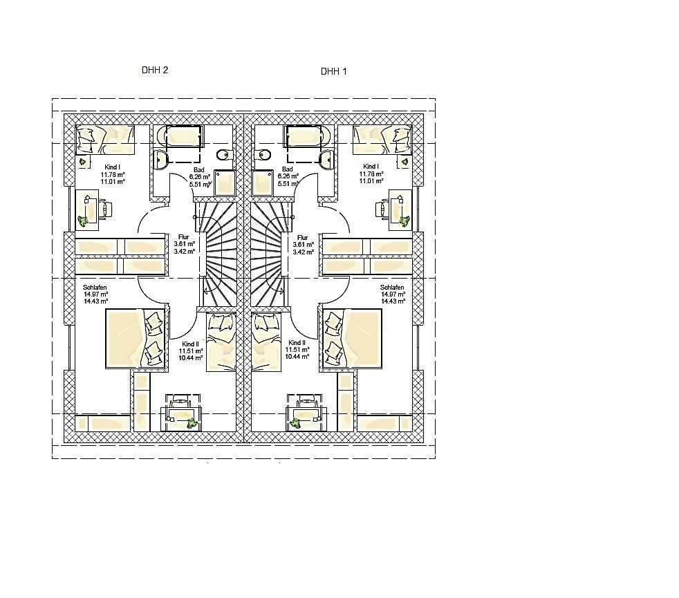
Bebauung: KG + EG + DG + Studio
nach ENEV 2016
Haus Nr. |
Grund |
WOHNFLÄCHE |
PREIS |
STATUS |
---|---|---|---|---|
DHH 1 (Süd - Ost) inkl. 2 Einzelgaragen |
ca. 227 m² | ca. 120 m² | verkauft | |
DHH 2 (Süd - West) | ca. 357 m² | ca. 120 m² | verkauft |
Im Grundstückspreis sind je ca. 84 m² Zufahrtsanteil enthalten.
Gemeinsame Zufahrt insgesamt ca. 168 m²
Im Kaufpreis enthalten:
- Grundstück voll erschlossen
- Hausanschlusskosten (Strom, Wasser, Kanal, Telekom, Gas)
- Zugänge und Hofzufahrt gepflastert oder Rasengittersteine (Allgemeingrundstück)
- 2 Einzelgaragen
- Gebäudeeinmessung
- Teilungsmessung
Im kaufpreis nicht enthalten:
- Gärtnerische Anlage auf zugeteilten Gartenanteilen
Ausbaustand:
- Ziegelhaus
- Bodenbeläge als Fliesen, Parkett und Laminat
- freitragende Holztreppe
- Sichtdachstuhl
- Bedarfsgeführte Abluftanlage
- Wärmepumpe und Fußbodenheizung
- Die Doppelhaushälfte ist bereits bis auf die Endmontage der sanitären Einrichtungsgegenständen komplett fertiggestellt
Änderungen, Irrtümer und Druckfehler bleiben vorbehalten!
Stand: 18.04.2023