
In Mitten von Lorenzen entsteht ein Mehrfamilienhaus mit 8 Eigentumswohnungen und Aufzug. In unmittelbarer Nähe liegt eine Bushaltestelle der Buslinie 13 für Schulfahrten in die Stadt oder zum nahe gelegenen Ort Hainsacker. In wenigen Minuten Autofahrt erreichen Sie die Orte Pielmühle und Lappersdorf mit zahlreichen Einkaufsmöglichkeiten sowie die Auffahrten zur A 93 und B16. Auch die Beerenmeile ist in wenigen Minuten Fußweg zu erreichen.
Bebauung: KG+EG+1.OG+DG
Aktueller Stand: Baugenehmigung erteilt
Dachstuhl wird in ca. 2 – 3 Wochen eingebracht und der Rohbau fertiggestellt.
Energieeffizienz KfW 40
degressive Abschreibung möglich
WOHNUNG |
ZIMMER |
WOHNFLÄCHE |
PREIS |
STATUS |
AUSSTATTUNG |
---|---|---|---|---|---|
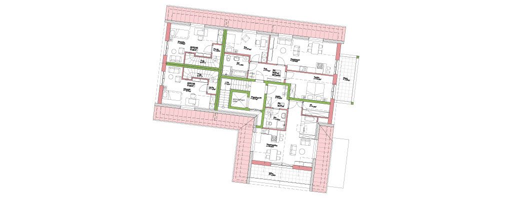
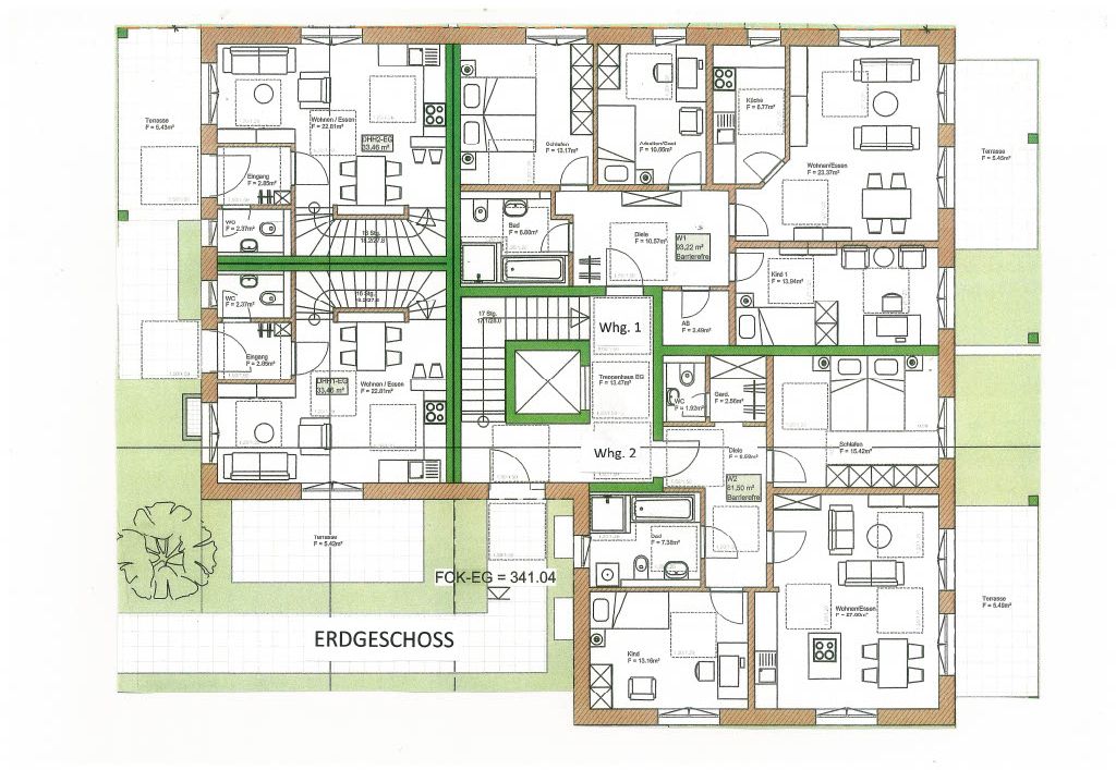
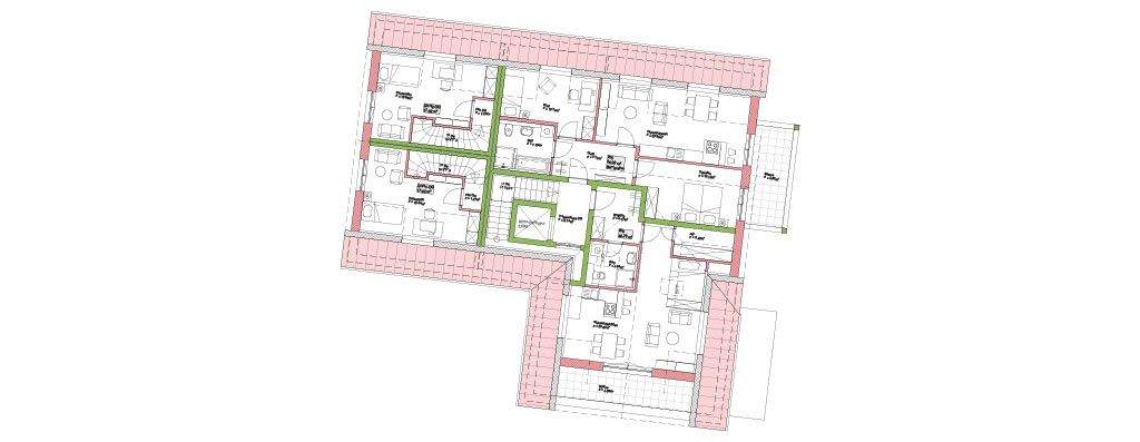
Nr. 1 (EG) | 4 Zi. | ca. 100,50 m² | |
verkauft | Terrasse Gartenanteil ca. 108 m² |
Nr. 2 (EG) | 3 Zi. | ca. 88,01 m² | 501.657 € 25.000 € |
frei | Terrasse Gartenanteil ca. 135 m² |
Nr. 3 (OG) | 4 Zi. | ca. 93,50 m² | verkauft | Balkon | |
Nr. 4 (OG) | 3 Zi. | ca. 81,01 m² | 461.757 € | frei | Balkon |
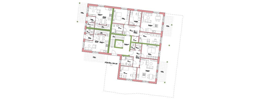
Nr. 5 (DG) | 3 Zi. | ca. 69,23 m² | verkauft | Balkon | |
Nr. 6 (DG) | 1 Zi. | ca. 49,94 m² | verkauft | Balkon | |
Nr. 7 | 3 Zi. | ca. 73,29 m² | verkauft | ||
Nr. 8 | 3 Zi. | ca. 73,28 m² | verkauft |
Kaufpreis je Einzelstellplatz (TG) | 26.000,00 € | |
Kaufpreis je Aussenstellplatz | 14.000,00 € | |
Pro Wohnung 1-5 müssen zwei Stellmöglichkeiten gekauft werden. Für Wohnung 6 ein TG-Stellplatz. |
Im Kaufpreis enthalten:
- Grundstück voll erschlossen
- Hausanschlusskosten (Strom, Wasser, Kanal, Telekom)
- Pro ETW ein Abstellraum im KG
- Wärmepumpe als Heizungsanlage
- Aufzug
- Zugänge und Hofzufahrt gepflastert (Allgemeingrundstück)
- Fahrradkeller
Im Wohnungskaufpreis nicht enthalten:
- Gärtnerische Anlage auf zugeteilten Gartenanteilen
- Stellplatz/TG-Stellplatz
- Gebäudeeinmessung
Ausbaustand:
- Bodenbeläge als Fliesen, Parkett und Laminat
- Treppenhaus Granitbelag
- Aufzug
- Sichtdachstuhl
- Lüftung pro Zimmer mit Wärmetauscher
- Wärmepumpe
Die Grundrisse der Wohnungen sind, nach technischer Abklärung, individuell abänderbar.
Änderungen, Irrtümer und Druckfehler bleiben vorbehalten
Stand: 18.06.2025