Zum Hauptinhalt springen
Grundstück

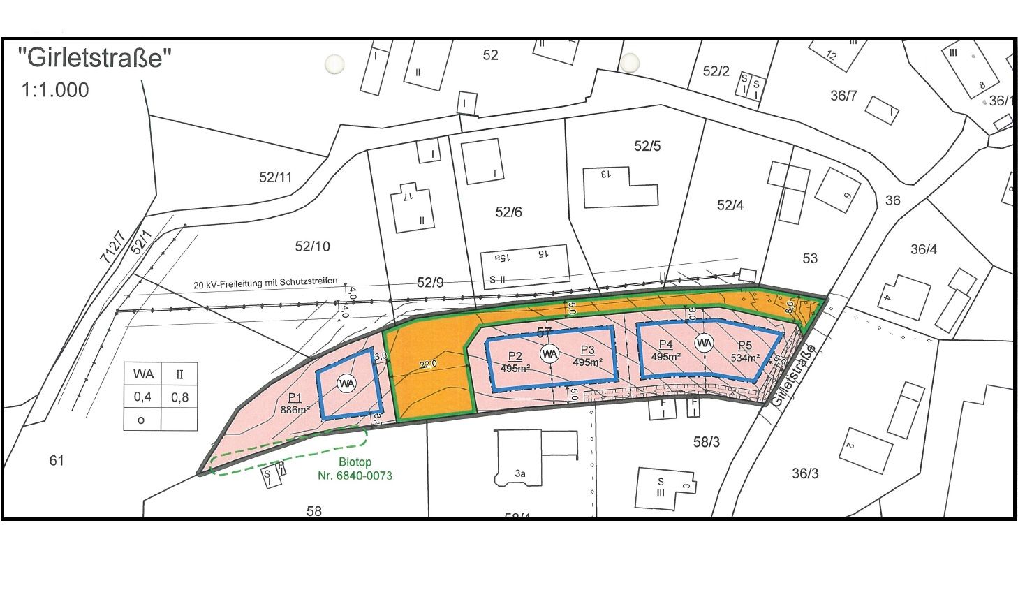
Girletstraße in Wald

Grundstück

  • Einheiten: 886 m²
  • Girletstraße in Wald: Grundstück am Biotop,

    • Bebauung mit EFH oder Bungalow möglich
    • Bereits erschlossen
    • Absolut ruhige Naturlage
    • Am Nachbarsgrundstück befindet sich ein See
    • Zentrumsnah
    • fußläufig sind Schulen, Kita, das Rathaus und verschiedene Einkaufsmöglichkeiten erreichbar

     

    • Verhandlungsbasis: 230.360,00 €
    • Grundstücksgröße ca. 886 m² zzgl. Straßenanteil.


    Änderungen, Irrtümer und Druckfehler bleiben vorbehalten!

    Stand: 23.09.2022