Zum Hauptinhalt springen
3 Reihenhäuser - Nittenauer Straße 19 a, b, c, 93192 Wald - Roßbach

93192 Wald - Roßbach

3 Reihenhäuser - Nittenauer Straße 19 a, b, c, 93192 Wald - Roßbach

  • Baubeginn: 2025 / 2026
  • Baufertigstellung: 2026
  • Lage: Ortsrandlage
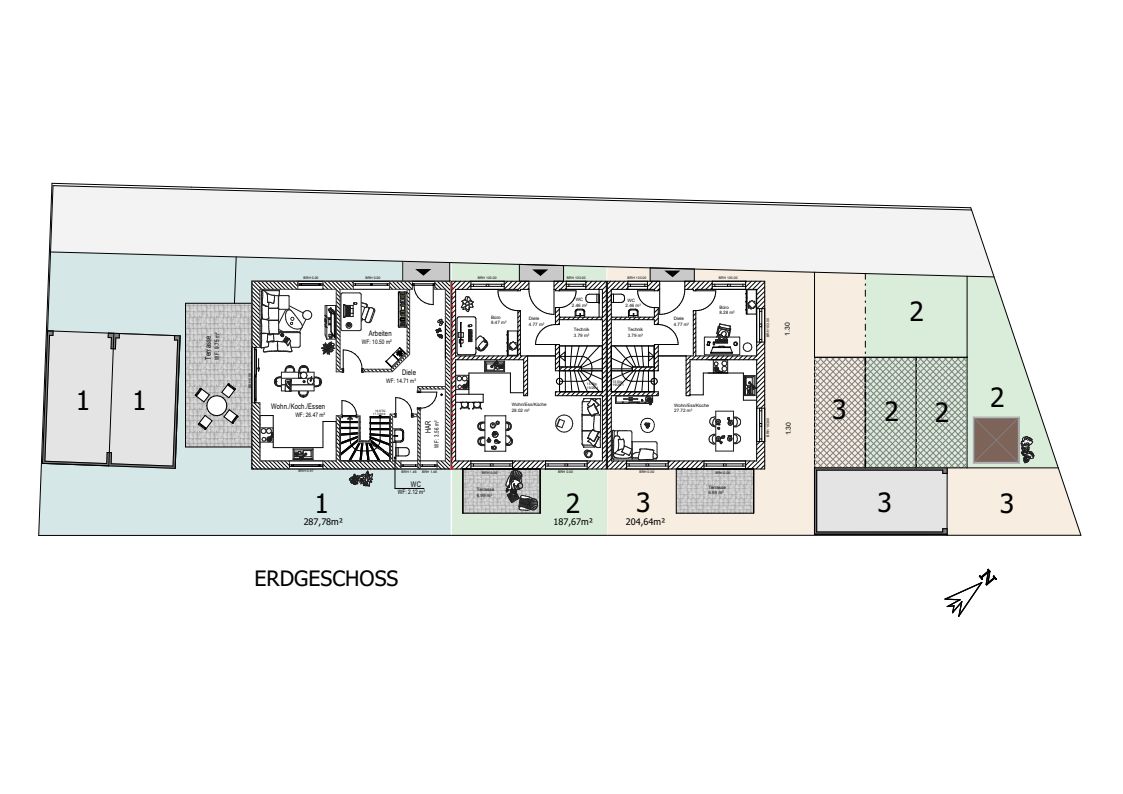
    Bebauung: EG + 1.OG mit Technikraum
    Energieeffizienz KfW 40

    Bebauung:
    Grundstück
    Wohnfläche
    Preis
    Zimmer
    Verfügbarkeit
    REH 1 große V 1 schlüsselfertig ca. 290 m² ca. 124 m² 449.000 € 5 frei
    REH 1 große V 2 Ausbauhaus ca. 290 m² ca. 124 m² 351.900 € 5 frei
    REH 1 kleine V 1 schlüsselfertig ca. 290 m² ca. 108 m² 414.900 € 5 frei
    REH 1 kleine V 2 Ausbauhaus ca. 290 m² ca. 108 m² 326.900 € 5 frei
    RMH 2 V 1 schlüsselfertig ca. 190 m² ca. 107 m² 357.500 € 5 frei
    RMH 2 V 2 Ausbauhaus ca. 190 m² ca. 107 m² 278.500 € 5 frei
    REH 3 V 1 schlüsselfertig ca. 205 m² ca. 108 m² 393.900 € 5 frei
    REH 3 V 2 Ausbauhaus ca. 205 m² ca. 108 m² 305.900 € 5 frei

     

    Kaufpreis je Stellplatz
    4.000 €
    Kaufpreis je Garage
    12.000 €

     

    Im Kaufpreis enthalten:

    Variante 1 schlüsselfertig:

    • Haus schlüsselfertig
    • Grundstück voll erschlossen
    • Abfuhr von überschüssiger Erde
    • Grobplanie
    • Erstmalige Erschließungskosten
    • Hausanschlusskosten (Strom, Wasser, Kanal, Telekom)

    Variante 2 Ausbauhaus:

    • Rohbau mit Dachstuhl und Dacheindeckung , Spenglerarbeiten, Aussenputz mit Malerarbeiten, Fenster, Haustüre
    • Grundstück voll erschlossen
    • Abfuhr von überschüssiger Erde
    • Grobplanie
    • Erstmalige Erschließungskosten
    • Hausanschlusskosten (Strom, Wasser, Kanal, Telekom)

    Im Hauskaufpreis nicht enthalten:

    Variante 1 schlüsselfertig:

    • Gärtnerische Anlage / Humusierung auf eigenem Grundstück
    • Gebäudeeinmessung
    • Einfriedung (Zaun)
    • Garage
    • gepflasterte Terrasse und Stellplätze
    • Teilungsmessung

    Im Hauskaufpreis nicht enthalten:

    Variante 2 Ausbauhaus:

    • Gewerk: Sanitäre Installation und Heizung
    • Gewerk: Elektroarbeiten
    • Gewerk: Treppe
    • Gewerk: Estrich
    • Gewerk: Innenmalerarbeiten
    • Gewerk: Bodenbeläge und Fliesenarbeiten
    • Rigipsarbeiten im Inneren des Hauses
    • Gärtnerische Anlage / Humusierung auf eigenem Grundstück
    • Gebäudeeinmessung
    • Einfriedung (Zaun)
    • Garage
    • gepflasterte Terrasse und Stellplätze
    • Teilungsmessung

    Ausbaustand:

    • Holzständerbauweise
    • Bodenbeläge als Fliesen, Parkett
    • Sichtdachstuhl
    • Geschlossene Treppe
    • Fußbodenheizung
    • Wärmepumpe
    • bedarfsgeführte Lüftungsanlage

    Objekt befindet sich im Genehmigungsverfahren.
    Änderungen, Irrtümer und Druckfehler bleiben vorbehalten

    Stand: 27.05.2025