
in Seedorf
Die Baugenehmigung wurde erteilt.
nach GEG 2024
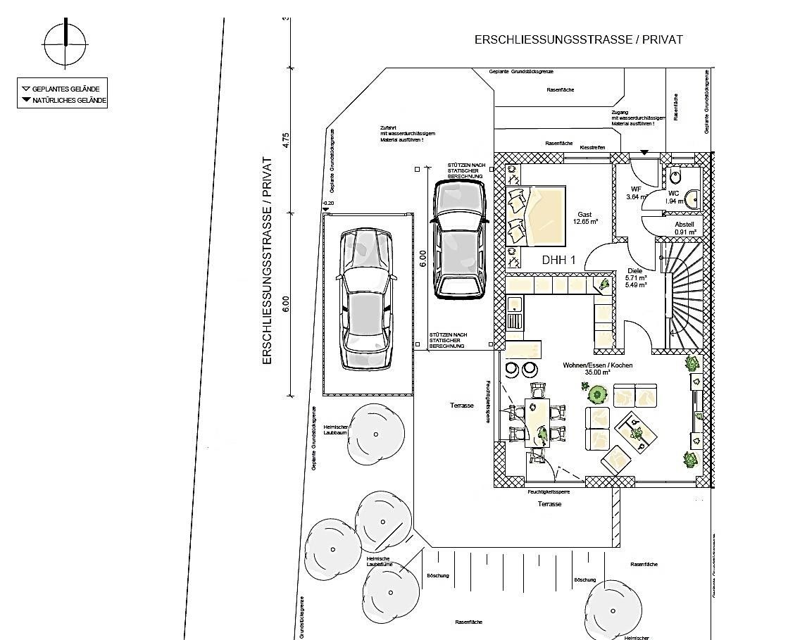
- Lage: Terrassen und Gärten Südausrichtung mit Ost - und Westsonne
- Baubeginn: 2025
- Baufertigstellung: 2026 / 2027
- Bebauung: KG + EG + DG + Spitz
Variante 1 :
7,11 m x 10,99 m
Parzelle Nr. |
Grund-
|
zzgl. Straßenanteil (Privatstraße) |
Zimmer |
Wohnfläche |
Verkaufs-
|
Vefügbar-
|
---|---|---|---|---|---|---|
1 | ca. 327 m² | ca. 79 m² | 7 | ca. 178 m² | 749.900,00 € | frei |
2 | ca. 327 m² | ca. 79 m² | 7 | ca. 178 m² | 734.900,00 € | frei |
3 | ca. 345 m² | ca. 79 m² | 7 | ca. 178 m² | 734.900,00 € | frei |
4 | ca. 307 m² | ca. 79 m² | 7 | ca. 178 m² | 734.900,00 € | frei |
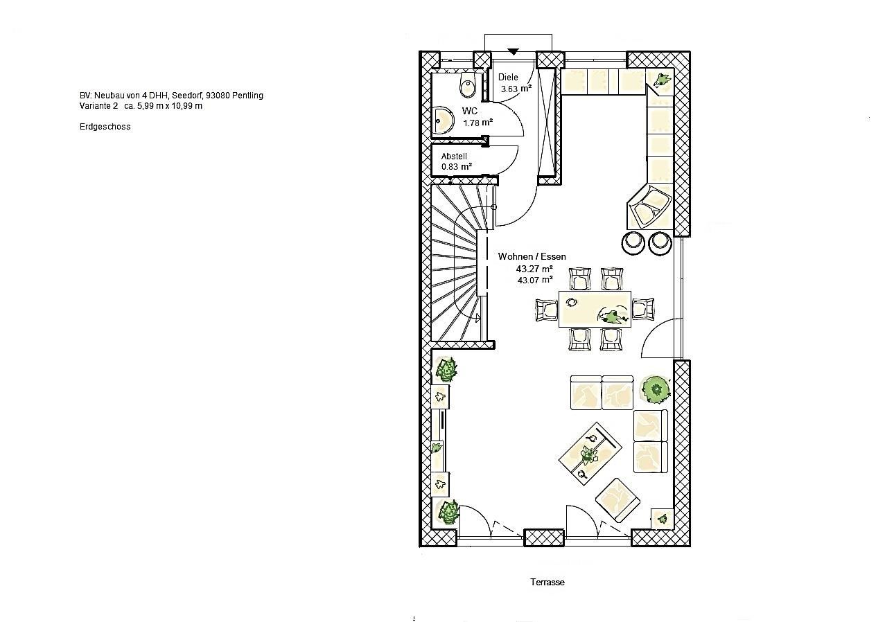
Variante 2 :
5,99 m x 10,99 m
Parzelle Nr. |
Grund-
|
zzgl. Straßenanteil (Privatstraße) |
Zimmer |
Wohnfläche |
Verkaufs-
|
Vefügbar-
|
---|---|---|---|---|---|---|
1 | ca. 327 m² | ca. 79 m² | 6 | ca. 146 m² | 709.900,00 € | frei |
2 | ca. 327 m² | ca. 79 m² | 6 | ca. 146 m² | 694.900,00 € | frei |
3 | ca. 345 m² | ca. 79 m² | 6 | ca. 146 m² | 694.900,00 € | frei |
4 | ca. 307 m² | ca. 79 m² | 6 | ca. 146 m² | 694.900,00 € | frei |
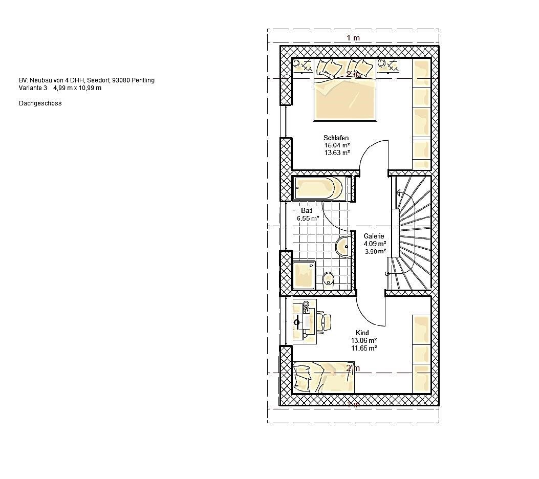
Variante 3 :
4,99 m x 10,99 m
Parzelle Nr. |
Grund-
|
zzgl. Straßenanteil (Privatstraße) |
Zimmer |
Wohnfläche |
Verkaufs-
|
Vefügbar-
|
---|---|---|---|---|---|---|
1 | ca. 327 m² | ca. 79 m² | 5 | ca. 114 m² | 689.900,00 € | frei |
2 | ca. 327 m² | ca. 79 m² | 5 | ca. 114 m² | 674.900,00 € | frei |
3 | ca. 345 m² | ca. 79 m² | 5 | ca. 114 m² | 674.900,00 € | frei |
4 | ca. 307 m² | ca. 79 m² | 5 | ca. 114 m² | 674.900,00 € | frei |
Im Kaufpreis enthalten:
- Grundstück voll erschlossen
- Abfuhr von überschüssiger Erde
- Grobplanie
- Hausanschlußkosten (Strom, Wasser, Kanal, Telekom)
- Erstmalige Erschließungskosten
- gepflasterte Terrasse
- gepflasterte Hofzufahrt
- eine Einzelgarage
- 1 gepflasterter Stellplatz
Im kaufpreis nicht enthalten:
- Gärtnerische Anlage
- Humusierung auf eigenem Hausgrundstück
- Gebäudeeinmessung
- Teilungsmessung
- Einfriedung (Zaun)
Ausbaustand schlüsselfertig:
- Stahlbetonkeller mit Wärmedämmung
- Kellergeschoss mit Wohnraumhöhe
- EG, DG und Studio in Ziegelbau
- Bodenbeläge als Fliesen, Parkett und Laminat
- Sichtdachstuhl
- freitragende Holztreppe
- Fußbodenheizung
- Wärmepumpe
- bedarfsgeführte Lüftungsanlage
Eigenleistungen möglich.
Änderungen, Irrtümer und Druckfehler bleiben vorbehalten
Stand: 10.02.2025