
Lage: zentral, sonnige und ruhige Lage
Bebauung: Bungalow EG mit abgesetztem Pultdach ideal für Photovoltaikanlage
nach GEG 2024
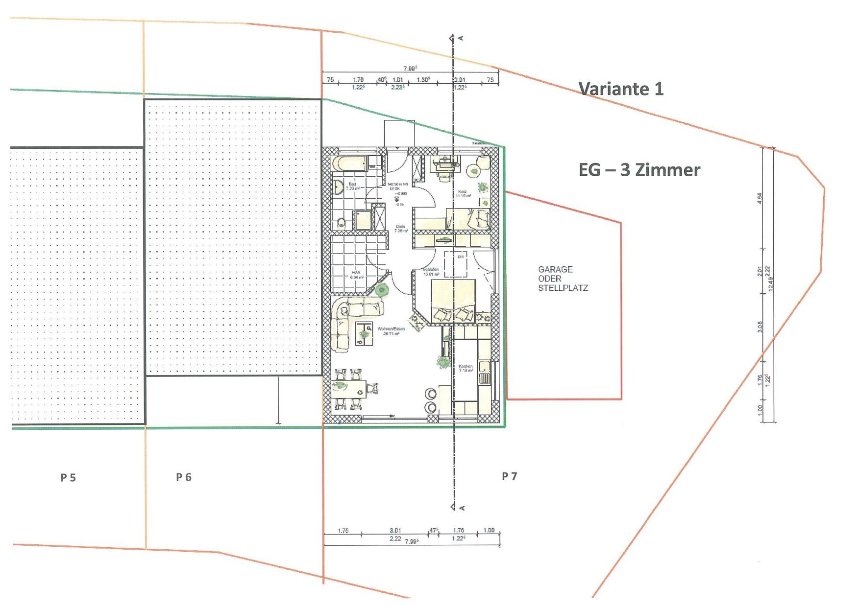
Verfügbare Grundstücke: Variante 1 : Bungalow mit EG - mit 3–Zimmer oder mit 4–Zimmer
Parzelle Nr |
Grund ca. |
Wohnfläche inkl. Terrassenanteil ca |
Verkaufspreis |
Verfügbarkeit |
---|---|---|---|---|
2 | 403 m² | 93,00 m² | 426.900 € | frei |
3 | 187 m² | 93,00 m² | 339.900 € | frei |
4 | 400 m² | 93,00 m² | 389.900 € | frei |
5 | 401 m² | 93,00 m² | 399.900 € | frei |
6 | 191 m² | 93,00 m² | 340.900 € | frei |
7 | 450 m² | 93,00 m² | 389.900 € | frei |
Verfügbare Grundstücke: Variante 2 : Reihenhaus EG und DG
Parzelle Nr |
Grund ca. |
Wohnfläche inkl. Terrassenanteil ca |
Verkaufspreis |
Verfügbarkeit |
---|---|---|---|---|
2 | 403 m² | 133,00 m² | 501.900 € | frei |
3 | 187 m² | 133,00 m² | 414.900 € | frei |
4 | 400 m² | 133,00 m² | 464.900 € | frei |
5 | 401 m² | 133,00 m² | 474.900 € | frei |
6 | 191 m² | 133,00 m² | 415.900 € | frei |
7 | 450 m² | 133,00 m² | 464.900 € | frei |
Im Kaufpreis enthalten:
- Grundstück voll erschlossen
- Variante 1 : Haus schlüsselfertig ; Ausführung als Drei – oder Vierzimmer – Bungalow , inkl. Speicher mit Schubtreppe
- Variante 2 : Haus schlüsselfertig ; Ausführung als Reihenhaus EG und DG , inkl. Speicher
- Abfuhr von überschüssiger Erde
- Grobplanie
- Hausanschlusskosten (Strom, Wasser, Kanal, Telekom)
- Erstmalige Erschließungskosten
Im Hauskaufpreis nicht enthalten:
- Gärtnerische Anlage / Humusierung auf eigenem Hausgrundstück
- Gebäudeeinmessung
- Komplette Aussenanlage , Stellplatz – oder Garagenanlage
- Terrasse
- Teilungsmessung
Mögliche Zusatzleistungen:
Preis pro Stellplatz | 3.500,00 € |
Preis pro Fertiggarage | 12.000,00 € |
Ausbaustand schlüsselfertig:
- Ziegelhaus
- Bodenbeläge als Fliesen und Parkett
- Sichtdachstuhl
- Fußbodenheizung
- Wärmepumpe
- bedarfsgeführte Lüftungsanlage
Baulich erlaubte mögliche Zusätze, nicht im Kaufpreis enthalten
- Garagen und zulässige Abstellräume bis zu einer Grundfläche von 54,00 m² möglich
- Nebenanlagen bis zu einer Grundfläche von max. 20,00 m² und einem Bruttorauminhalt von max. 50,000 m² beliebig auf dem jeweiligen Grundstück erstellbar
Eigenleistungen möglich.
Änderungen, Irrtümer und Druckfehler bleiben vorbehalten
Stand: 04.11.2024